Vielseitig nutzbare Lagerhalle mit Kühlbereich in Herzhorn – voll gedämmt und funktional aufgeteilt








- Objektart
- Hallen/Lager/Produktion
- Objekttyp
- Lagerhalle
- Vermarktungsart
- Kauf
- PLZ
- 25379
- Ort
- Herzhorn
- ImmoNr
- MB-644
- Kaufpreis
- 179.000,00 €
- Baujahr
- 1938
- Energieausweis
- es besteht keine Pflicht!
- Außen-Provision
- 5,95 %
Beschreibung
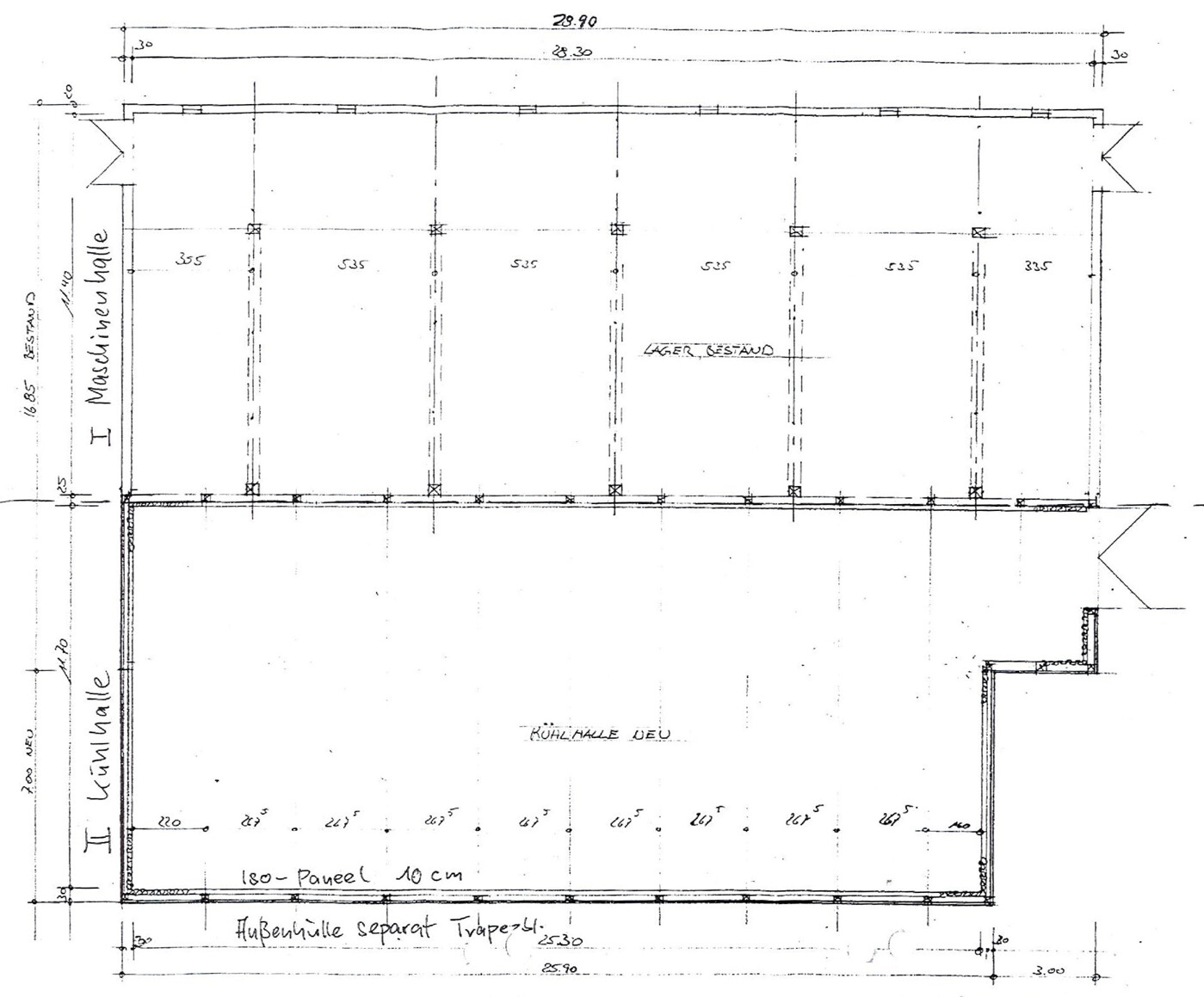
In ruhiger Ortslage von Herzhorn befindet sich diese gepflegte, vollgedämmte Lagerhalle auf einem ca. 1.040 m² großen Grundstück. Die Immobilie überzeugt durch ihre durchdachte Raumaufteilung, robuste Bauweise und die Kombination aus Kühl- und Lagerbereich – ideal für unterschiedlichste gewerbliche Nutzungen, insbesondere im Bereich der temperaturgeführten Lagerung und Logistik.Der Lagerbereich umfasst ca. 322 m² und wurde ursprünglich um ca. 1938 in massiver Backsteinbauweise errichtet. Die Halle zeichnet sich durch ihre solide Substanz und funktionale Nutzungsmöglichkeiten aus. Derzeit wird der Lagerteil zur Aufbewahrung von Rundballen (Heu/Stroh) verwendet. Besonders hervorzuheben ist das rückwärtige Rolltor mit ca. 4,70 m Breite und 4,70 m Höhe – optimal für große Maschinen oder zur Durchfahrt.
Der Kühlbereich nimmt ca. 302 m² der Gesamtfläche ein und wurde 1998 als „Halle in der Halle“ konzipiert. Der Ausbau erfolgte mit ca. 12–15 cm starken, isolierten Sandwichpaneelen auf einem Holzständerwerk, das mit Trapezblech verkleidet ist. Die Kühlzone ist vollständig vom übrigen Hallenbereich getrennt und eignet sich ideal zur Lagerung temperaturempfindlicher Produkte wie Lebensmittel, Pflanzen oder medizinischer Erzeugnisse. Die Kühlung erfolgt über fünf fest installierte Aggregate im Innenbereich und ist auf eine konstante Temperatur von ca. 0 °C ausgelegt. Das Zufahrtstor an der Frontseite ist ca. 3,40 m breit, ca. 3,50 m hoch, das separate Innentor (ca. 2,80 m breit, ca. 2,90 m hoch) verbindet die Kühlhalle mit dem übrigen Hallenbereich.
Diese Immobilie überzeugt durch ihre vielseitige Nutzbarkeit, klare Flächenaufteilung und funktionale Ausstattung. Besonders hervorzuheben ist der großzügige, separat nutzbare Kühlbereich mit moderner Dämmung und Kühltechnik – ideal für Unternehmen mit Bedarf an temperaturgeführten Lagerflächen. Der nicht gedämmte Lagerteil in solider Backsteinbauweise bietet zusätzlich Potenzial für klassische Lager- oder Werkstattnutzung. Dank der verschiedenen Zufahrtsmöglichkeiten, der großen Toranlagen und der robusten Bausubstanz eignet sich das Objekt hervorragend für gewerbliche Betriebe mit flexiblen Anforderungen. Eine Besichtigung lohnt sich – nicht zuletzt aufgrund der seltenen Kombination aus historischer Substanz und funktionalem Kühlanbau.
Hinweis: Die Photovoltaikanlage auf dem Hallendach ist nicht Bestandteil des Angebots.
Lage
Die angebotene Lagerhalle befindet sich in ruhiger, verkehrsgünstiger Lage in der Gemeinde Herzhorn im Kreis Steinburg, Schleswig-Holstein. Die Umgebung ist geprägt von einer Mischung aus landwirtschaftlich genutzten Flächen und kleineren Gewerbebetrieben, was ideale Bedingungen für Lager- und Logistikunternehmen schafft, die einen Standort mit guter Erreichbarkeit und gleichzeitigem Rückzugscharakter suchen.Die Anbindung an das regionale Verkehrsnetz ist hervorragend: Über die nahegelegene Bundesstraße B431 ist eine zügige Verbindung nach Elmshorn sowie zur Autobahn A23 gewährleistet, was kurze Wege in Richtung Hamburg und Heide ermöglicht. Auch der Hafen von Glückstadt ist in kurzer Fahrzeit erreichbar und bietet interessante logistische Optionen im norddeutschen Raum.
Die Infrastruktur in der Region ist gut ausgebaut. Einkaufsmöglichkeiten, Gastronomie sowie Dienstleistungsangebote befinden sich im nahen Umkreis, was den Standort auch für Mitarbeiter attraktiv macht. Die naturnahe Lage bietet zudem ein angenehmes Arbeitsumfeld mit hoher Lebensqualität.
Sonstige Angaben
Sehr geehrte Interessentinnen und Interessenten. Bitte geben Sie uns bei Ihrer Anfrage Ihre Kontaktdaten bekannt:• Name
• Adresse
• Telefonnummer
• E-Mail-Adresse
So können wir Ihnen die gewünschten Unterlagen ohne Verzögerung zusenden
und haben auch einen Nachweis für unseren Auftraggeber. Ihre Daten werden selbstverständlich vertraulich behandelt (gemäß DSGVO) und nicht an Dritte weitergegeben.
Alle Information sind nach bestem Wissen und Gewissen aufbereitet. Die angegebenen Maße sind vor Ort zu überprüfen und es wird keine Haftung für die Richtigkeit übernommen.
Wegen der Widerrufsbelehrung:
Da eine Provision selbstverständlich nur dann anfällt, wenn Sie ein provisionspflichtiges Objekt auch tatsächlich kaufen, bleibt Ihre Anfrage auch bei Einwilligung zur sofortigen Maklertätigkeit kostenfrei.
Jederzeit können Sie sich auf uns als kompetenten und vertrauensvollen Partner verlassen. Wir beraten Sie beim Kauf des geeigneten Grundstücks, im Umgang mit Ämtern, Anwälten und Notaren, bei Bank- und Behörden-Angelegenheiten. Wir bieten Ihnen Sicherheit und Professionalität und entlasten Sie dadurch spürbar.
Auch bei der Findung des richtigen Finanzpartners unterstützen wir Sie gerne. Unsere Finanzierungspartner freuen sich darauf, Sie persönlich kennen zu lernen. Eine Beratung ist für Sie kostenlos und aufschlussreich.