Neubauplanung - Familienhaus im klassischen Stil - Niedrigenergiehaus EH40 mit Wärmepumpe & PV-Anlage






- Objektart
- Haus
- Objekttyp
- Einfamilienhaus
- Vermarktungsart
- Kauf
- PLZ
- 23623
- Ort
- Ahrensbök / Barghorst
- ImmoNr
- KE-755
- Wohnfläche
- ca. 129 m²
- Grundstücksgröße
- ca. 532 m²
- Anzahl Zimmer
- 4
- Anzahl Badezimmer
- 1
- Kaufpreis
- 414.820,00 €
Beschreibung
Familiendomizil in naturnaher Lage - Niedrig-Energiehaus EH40 mit Wärmepumpe und PV-AnlageMachen Sie sich unabhängig von Gas oder Öl und bauen Sie Ihrer Familie ein neues Zuhause mit offenem, jungem Konzept. Der Grundriss überzeugt mit klaren Strukturen, so dass der Platz im Inneren optimal genutzt wird.
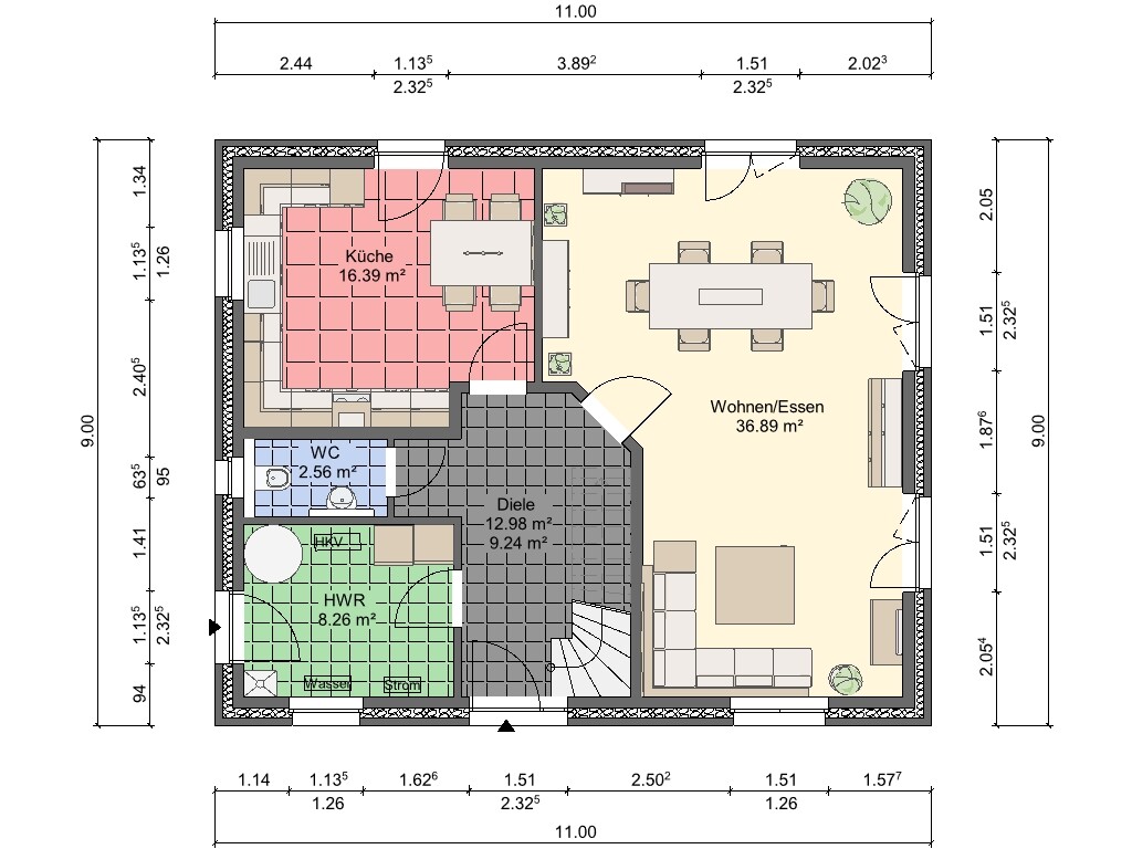
Das Erdgeschoss ist der Mittelpunkt für das Leben im Haus. Ein kombinierter Wohn- und Essbereich inklusive offener Küche lädt zu gemeinsamen Aktivitäten ein. Die Fenster- und Terrassenelemte bieten Ihnen viel Tageslicht aus zwei Himmelsrichtungen und garantieren damit ein sonniges Wohnerlebnis.
Das Gäste-WC und der Hauswirtschafts-/Technikraum befinden sich ebenfalls hier im Erdgeschoss.
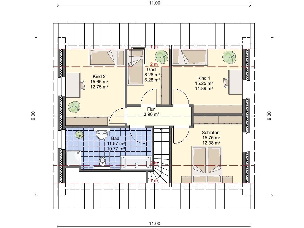
Das Dachgeschoss ist der Ruheort für die Familie; die pfiffige Aufteilung bietet drei gemütliche Schlafräume, jeweils mit zusätzlichem Dachflächenfenster, sowie ein großes Familienbadezimmer.
DATEN:
Einfamilienhaus mit Verblendfassade, Grundmaß ca. 8,50 x 10,00 m
Wohnfläche nach DIN: 129,37 m²
Massive Außen- und Innenwände
Wärmepumpe, Fußbodenheizung und PV-Anlage
Kontrollierte Be- und Entlüftungsanlage mit Wärmerückgewinnung
Ausstattung garantiert als Niedrigenergiehaus!
Geplant ist der Neubau dieses Einfamilienhauses auf einem Baugrundstück in Barghorst, Gemeinde Ahrensbök. Unser Preis beinhaltet den Preis des Familienhauses inklusive Kaufpreis für das jeweilige Grundstück.
Hierbei handelt es sich um ein Planungsbeispiel. Gerne ermitteln wir gemeinsam in einem kostenlosen ausführlichen Beratungsgespräch eine detaillierte Gesamtkostenaufstellung und planen mit Ihnen Ihr persönliches Haus. Auch andere Haustypen können auf diesem Grundstück errichtet werden. Gestalten Sie mit uns Ihren Haustraum. Wir freuen uns auf das Gespräch mit Ihnen.
Lage
Der Ortsteil Barghorst gehört zur Gemeinde Ahrensbök im Kreis Ostholstein und liegt in einer ruhigen, ländlich geprägten Umgebung in Schleswig-Holstein.Die Region zeichnet sich durch ihre naturnahe Lage mit weitläufigen Feldern, Wiesen und kleinen Waldflächen aus und bietet ein angenehmes Wohnumfeld abseits des städtischen Trubels.
Ahrensbök bildet das infrastrukturelle Zentrum der Umgebung und ist in wenigen Fahrminuten erreichbar. Dort befinden sich Einkaufsmöglichkeiten für den täglichen Bedarf, Kindergärten, Schulen, ärztliche Versorgung sowie gastronomische Angebote.
Die verkehrstechnische Anbindung ist gut: Über die Bundesstraße B432 sowie die nahegelegenen Autobahnen A1 und A20 sind die Ostseeküste, Lübeck sowie weitere Städte der Region bequem erreichbar. Die beliebten Ostseebäder wie Scharbeutz, Timmendorfer Strand oder Neustadt in Holstein liegen nur eine kurze Autofahrt entfernt.
Die Umgebung bietet vielfältige Freizeit- und Erholungsmöglichkeiten. Die Nähe zur Ostsee, zahlreiche Rad- und Wanderwege sowie die reizvolle holsteinische Landschaft machen Barghorst zu einem attraktiven Wohnstandort für Naturliebhaber, Ruhesuchende und Familien gleichermaßen.
Ausstattung
• Niedrigenergiehaus EH40• Stein auf Stein – Meisterhaft gebaut
• Außenfassade als Verblendmauerwerk bis zu 1.140,-€/pro
1000 Stück
• Freie Raum – und Grundrissgestaltung
• Fußbodenheizung
• Wärmepumpe
• PV-Anlage
• Kontrollierte Wohnraumlüftung mit Wärmerückgewinnung
• Massive Innenwände
• Allgemeine Geschoßhöhe im EG 2,775 m
• Alle Schlaf- und Kinderzimmer Internet- und Fernsehanschluss,
sowie Rauchmelder
• Nur Marken- und Qualitätsbaustoffe
• Wandhängende WC's (Villeroy & Boch) mit Abmauerung und Hintermauerspülkasten
• Superflache Duschtasse und Badewanne im Vollbad
• Waschtisch Villeroy & Boch, Armaturen von Hans Grohe o.ä.
• Kunststofffenster, 3-fach verglast, Ug-Wert 0,5W/m²*xK
• Innenfensterbänke in Mikro-Marmor
• Pilzkopfverriegelung (besserer Einbruchschutz)
• Bodenfliesen in Diele, Küche, HWR, Gäste-WC, Bad m.
Sockelleiste bis 40€/m² Materialkosten inkl.
• Architektenleistung, Bauanträge, Statik, Erstellen des
Wärmebedarf- und Energieausweises
• Erstellung des Feuerungsantrages und Entwässerungsantrages
• Bodengutachten mit 4 Bohrung und geologischer Auswertung
• Einmessung und Erstellen eines Schnurgerüstes
• Dichtigkeitsprüfung der Entwässerung unter der Sohle
• Erdarbeiten für Ihr Haus, gemäß Baubeschreibung
• Streifenfundamente inkl. Bodenplatte mit Untersohlendämmung
• Frostsicherer Außenwasseranschluss
• Bauausführung nur durch Meisterbetriebe aus der Region
• Bauherrenhaftpflichtversicherung, Bauleistungsversicherung,
Feuer- Rohbauschutzversicherung
• Blower-Door-Zertifikat,
• Vertragserfüllungsbürgschaft
• Bauzeitgarantie
• Gewährleistungszeit beträgt 5 Jahre nach BGB
Sonstige Angaben
Die vom Käufer zu zahlende Provision beträgt 4.463,21 € inkl. Mehrwertsteuer.Die Provision bezieht sich ausschließlich auf den vermittelten Grundstücksanteil des Neubauvorhabens. Der Provisionsanspruch entsteht mit Abschluss eines notariellen Kaufvertrages über den Grundstücksanteil.
Bitte beachten: Fotos sind Beispiel-Abbildungen und können Sonderleistungen enthalten, die nicht Bestandteil unseres Angebotes sind.
Hinweis zu den gesetzlichen Pflichtangaben gemäß der EnEV: Bei diesem Angebot handelt es sich um ein projektiertes Neubau-Objekt und es liegt daher noch kein Energieausweis vor. Dieser wird Ihnen spätestens im Rahmen der Erstellung des Objektes ausgehändigt.
Gerne ermitteln wir für Sie in einem ausführlichen Beratungsgespräch eine detaillierte Gesamtkostenaufstellung und planen mit Ihnen Ihr persönliches Haus. Die Baunebenkosten wie z.B. Hausanschlüsse, Außenanlagen, Entwässerung, Behördengebühren, Bauwasser, Baustrom sowie Maler- und Teppicharbeiten usw. sind nicht im aufgeführten Kaufpreis enthalten. Bitte berücksichtigen Sie zusätzliche Kosten für Ihre individuell geplante Küche.
Bitte haben Sie Verständnis, dass nur Anfragen mit vollständigen Kontaktdaten (Name, Anschrift, Telefon, E-Mail) bearbeitet werden können. Wir werden dann telefonisch oder per E-Mail mit Ihnen Kontakt aufnehmen. Mit Ihrer Anfrage und Zusendung Ihrer Daten erklären Sie sich mit einer Kontaktaufnahme durch unser Büro einverstanden. Selbstverständlich werden Ihre Daten vertraulich behandelt (gemäß DSGVO) und nicht an Dritte weitergegeben.
Wir freuen uns auf Ihre Anfrage und stehen für Ihre Fragen gerne zur Verfügung. Neben diesem Angebot bieten wir Ihnen Unterstützung bei einer Finanzierung oder bauen auch auf Ihrem Grundstück Ihr Wunschhaus.